415 Shoreway Drive Ottawa, Ontario K4P 0G4
$1,595,900
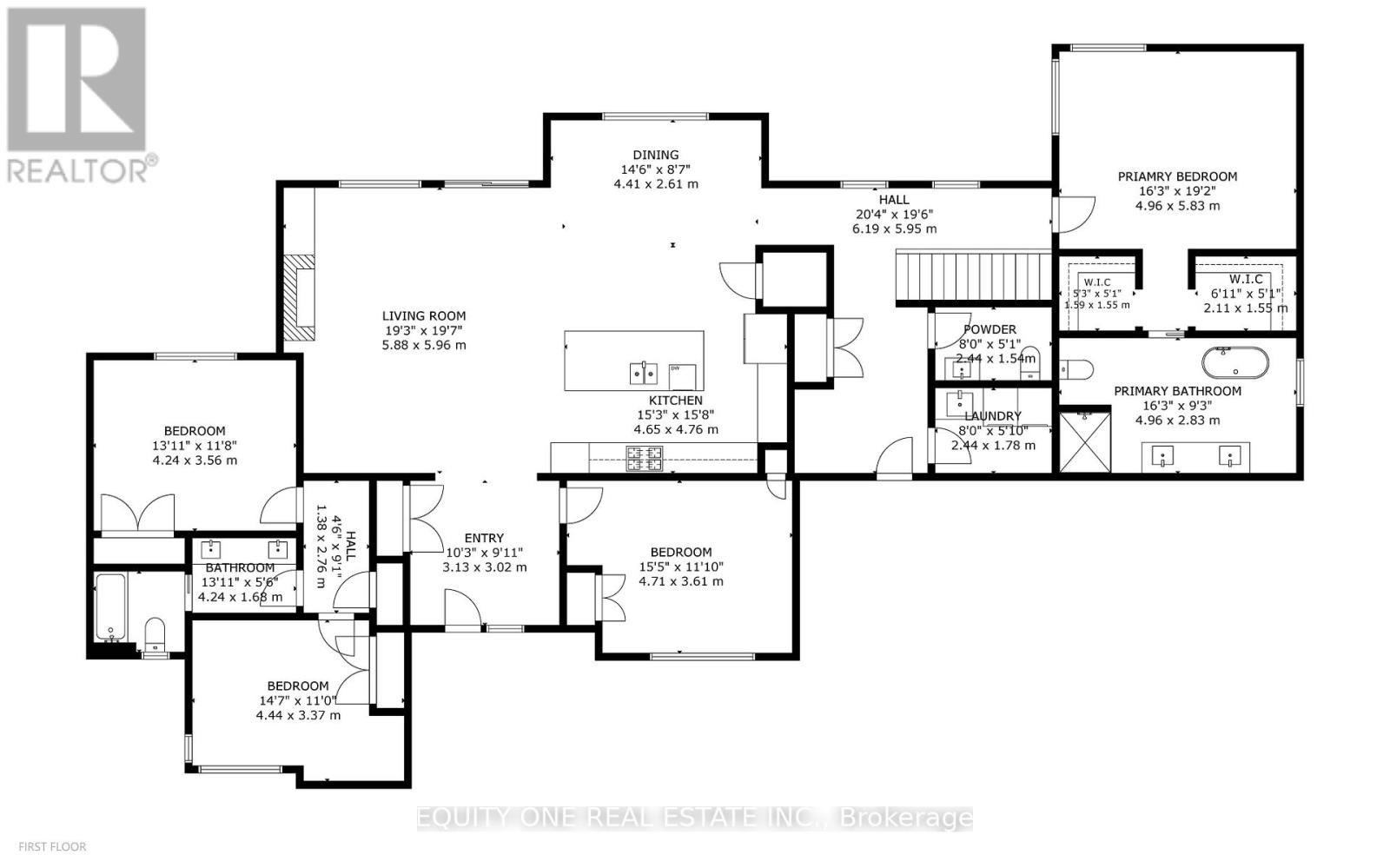
Welcome to this spectacular 4+1 bedroom, 4 bathroom bungalow in the highly sought-after Lakewood Trails community of Greely where modern luxury meets peaceful estate living. Built by Mackie Homes, this beautifully designed residence offers exceptional craftsmanship, thoughtful upgrades, and an ideal layout. The main level features a bright, open-concept design anchored by a stunning great room with a cozy natural gas fireplace, seamlessly flowing into a designer kitchen with quality cabinetry, stone countertops, and generous prep space ~ perfect for hosting family and friends. Designed for privacy, the primary suite is set on one side of the home, offering a peaceful retreat complete with his & hers walk-in closets and a luxurious ensuite featuring a freestanding soaker tub, glass shower, and heated floors. On the opposite side of the home, you'll find three additional well-sized bedrooms and a full bathroom-ideal for family living or guests. A spacious mudroom with built-in cabinetry provides excellent everyday storage and organization, while the main floor laundry room adds convenience and functionality.The fully finished lower level expands your living space with a large recreation area, dedicated exercise space, additional bedroom, and full bathroom. A separate theatre room with a second gas fireplace creates the perfect setting for movie nights and entertaining ~ ideal for multi-generational living or a private retreat. Car enthusiasts and families alike will appreciate the heated oversized 3-car garage, complete with built-in shelving for storage and direct access to the basement ~ an incredibly practical feature. Storage is abundant throughout the home, making it easy to stay organized and clutter-free. Outside, enjoy a beautifully landscaped backyard, rear patio, and upgraded exterior featuring stone and brick finishes, all set within one of Greely's most desirable communities featuring a community rec centre, pool and gym. Association fee of $400/year. (id:19849)
Property Details
| MLS® Number | X13017578 |
| Property Type | Single Family |
| Community Name | 1601 - Greely |
| Equipment Type | Water Heater |
| Features | Sump Pump |
| Parking Space Total | 15 |
| Rental Equipment Type | Water Heater |
Building
| Bathroom Total | 4 |
| Bedrooms Above Ground | 4 |
| Bedrooms Below Ground | 1 |
| Bedrooms Total | 5 |
| Amenities | Fireplace(s) |
| Appliances | Oven - Built-in, Garage Door Opener Remote(s), Central Vacuum, Cooktop, Dishwasher, Dryer, Garage Door Opener, Hood Fan, Microwave, Oven, Washer, Window Coverings, Refrigerator |
| Architectural Style | Bungalow |
| Basement Development | Finished |
| Basement Type | Full (finished) |
| Construction Style Attachment | Detached |
| Cooling Type | Central Air Conditioning |
| Exterior Finish | Brick, Stone |
| Fireplace Present | Yes |
| Fireplace Total | 2 |
| Foundation Type | Poured Concrete |
| Half Bath Total | 1 |
| Heating Fuel | Natural Gas |
| Heating Type | Forced Air |
| Stories Total | 1 |
| Size Interior | 2500 - 3000 Sqft |
| Type | House |
Parking
| Attached Garage | |
| Garage |
Land
| Acreage | No |
| Sewer | Septic System |
| Size Depth | 233 Ft ,10 In |
| Size Frontage | 99 Ft ,9 In |
| Size Irregular | 99.8 X 233.9 Ft |
| Size Total Text | 99.8 X 233.9 Ft |
| Zoning Description | V1e |
Rooms
| Level | Type | Length | Width | Dimensions |
|---|---|---|---|---|
| Lower Level | Family Room | 8.38 m | 4.72 m | 8.38 m x 4.72 m |
| Lower Level | Bathroom | 2.64 m | 2.01 m | 2.64 m x 2.01 m |
| Lower Level | Bedroom 5 | 4.87 m | 4.05 m | 4.87 m x 4.05 m |
| Lower Level | Recreational, Games Room | 10.14 m | 5.13 m | 10.14 m x 5.13 m |
| Lower Level | Exercise Room | 7.97 m | 3.83 m | 7.97 m x 3.83 m |
| Main Level | Living Room | 6.19 m | 4.95 m | 6.19 m x 4.95 m |
| Main Level | Bathroom | 5.01 m | 2.92 m | 5.01 m x 2.92 m |
| Main Level | Mud Room | 3.45 m | 2.84 m | 3.45 m x 2.84 m |
| Main Level | Dining Room | 4.43 m | 2.72 m | 4.43 m x 2.72 m |
| Main Level | Kitchen | 4.73 m | 4.7 m | 4.73 m x 4.7 m |
| Main Level | Bedroom 2 | 3.96 m | 3.77 m | 3.96 m x 3.77 m |
| Main Level | Bedroom 3 | 3.84 m | 3.21 m | 3.84 m x 3.21 m |
| Main Level | Bedroom 4 | 4.39 m | 3.69 m | 4.39 m x 3.69 m |
| Main Level | Bathroom | 4.39 m | 1.7 m | 4.39 m x 1.7 m |
| Main Level | Bathroom | 1.46 m | 2.67 m | 1.46 m x 2.67 m |
| Main Level | Laundry Room | 2.63 m | 1.89 m | 2.63 m x 1.89 m |
| Main Level | Primary Bedroom | 5.01 m | 4.18 m | 5.01 m x 4.18 m |
https://www.realtor.ca/real-estate/29626576/415-shoreway-drive-ottawa-1601-greely
Interested?
Contact us for more information
Joanne Gauthier
Broker of Record
www.equityone.ca/
6951 South Village Drive
Ottawa, Ontario K4P 0A3
(613) 434-1521

















































