LOADING

1402 Jamison Avenue Ottawa, Ontario K1E 1J5

3 Bedroom 3 Bathroom 1100 - 1500 sqft
Bungalow Fireplace Central Air Conditioning Forced Air

$625,000

Welcome to this well-located bungalow in the heart of Orléans, offering comfort, functionality, and a fantastic location. This 3-bedroom home features a bright, inviting kitchen with plenty of natural light and hardwood flooring throughout the main level. The primary bedroom includes its own ensuite, while a full 4-piece bathroom completes the main floor. Enjoy added warmth and charm with two gas fireplaces. The fully finished basement boasts a large family room, perfect for a variety of uses-whether a rec room, home office, or additional living space. Step outside to a beautifully landscaped, private backyard, ideal for relaxing or entertaining. Conveniently located close to parks, schools, recreation, and all amenities, this home is perfect for families, downsizers, or first-time buyers alike. (id:19849)

Property Details

MLS® Number X13028724
Property Type Single Family
Community Name 1102 - Bilberry Creek/Queenswood Heights
Parking Space Total 3

Building

Bathroom Total 3
Bedrooms Above Ground 3
Bedrooms Total 3
Age 51 To 99 Years
Amenities Fireplace(s)
Appliances Dishwasher, Water Heater
Architectural Style Bungalow
Basement Development Finished
Basement Type N/a (finished)
Construction Style Attachment Detached
Cooling Type Central Air Conditioning
Exterior Finish Aluminum Siding, Brick
Fireplace Present Yes
Fireplace Total 2
Foundation Type Concrete
Half Bath Total 1
Heating Fuel Natural Gas
Heating Type Forced Air
Stories Total 1
Size Interior 1100 - 1500 Sqft
Type House
Utility Water Municipal Water

Parking

Carport
Garage

Land

Acreage No
Sewer Sanitary Sewer
Size Depth 96 Ft
Size Frontage 50 Ft
Size Irregular 50 X 96 Ft
Size Total Text 50 X 96 Ft

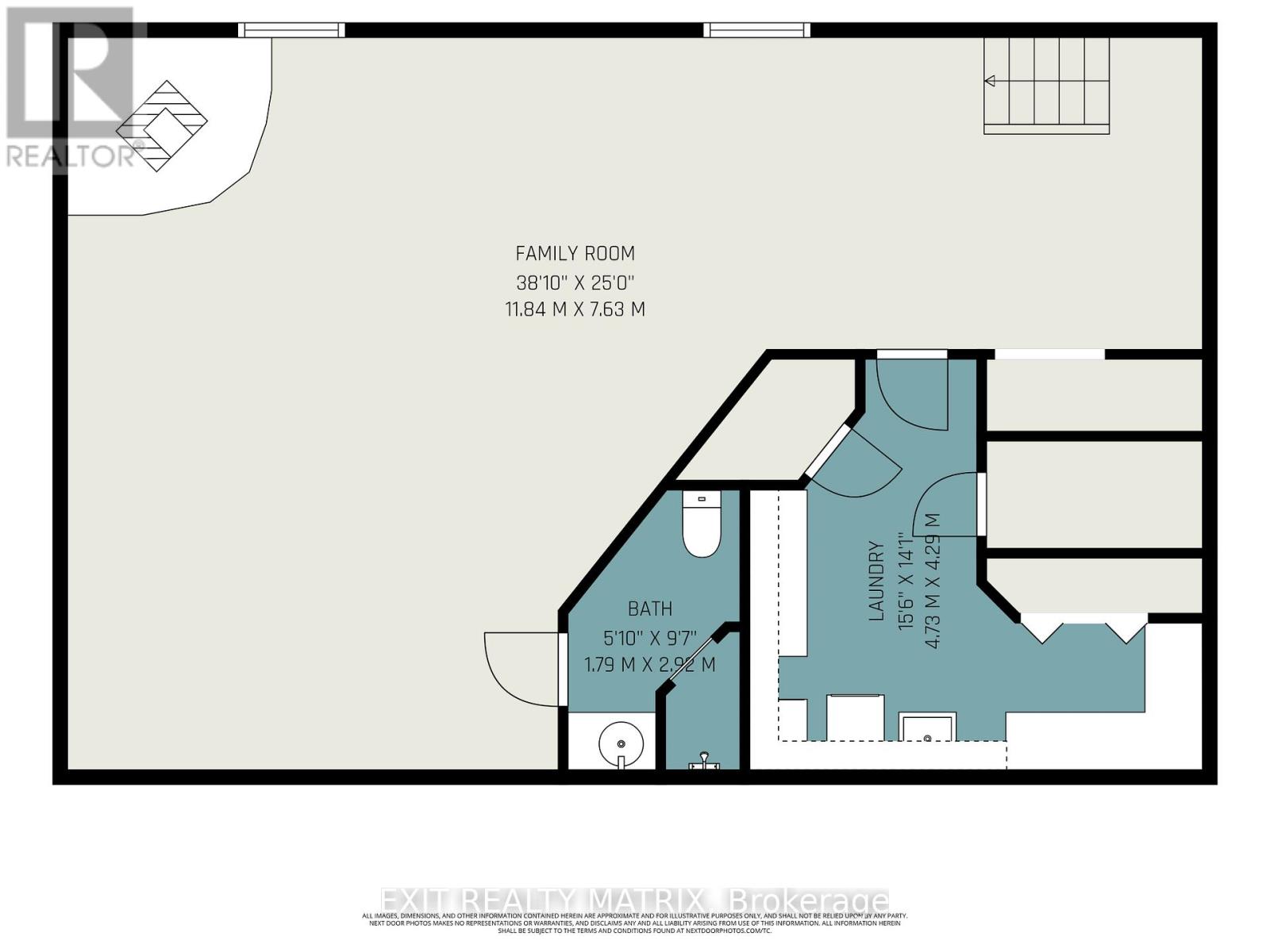
Rooms

Level Type Dimensions
Basement Family Room 11.84 m x 7.63 m
Basement Laundry Room 4.73 m x 4.29 m
Basement Bathroom 1.79 m x 2.92 m
Main Level Foyer 1.04 m x 1.43 m
Main Level Living Room 4.99 m x 3.36 m
Main Level Dining Room 2.28 m x 3.16 m
Main Level Kitchen 3.74 m x 4.17 m
Main Level Primary Bedroom 3.34 m x 3.77 m
Main Level Bedroom 2 2.74 m x 2.9 m
Main Level Bedroom 3 2.74 m x 2.9 m
Main Level Bathroom 2.18 m x 1.88 m
Main Level Bathroom 1.5 m x 1.43 m

https://www.realtor.ca/real-estate/29639067/1402-jamison-avenue-ottawa-1102-bilberry-creekqueenswood-heights

Interested?

Contact us for more information


Generating Captcha

Maggie Tessier
Broker of Record

(613) 447-4707
www.tessierteam.ca/
www.facebook.com/thetessierteam
twitter.com/maggietessier
ca.linkedin.com/pub/dir/Maggie/Tessier

Exit Realty Matrix
785 Notre Dame St, Po Box 1345
Embrun, Ontario K0A 1W0

(613) 443-4300
(613) 443-5743
www.exitottawa.com/

Jamie Kuntz
Salesperson

(613) 790-5263
www.jamiekuntz.com/

Exit Realty Matrix
785 Notre Dame St, Po Box 1345
Embrun, Ontario K0A 1W0

(613) 443-4300
(613) 443-5743
www.exitottawa.com/

Your Favourites

 

No Favourites Found

 

Go to Top